London Homes

Land in Gnosall Heath (Staffordshire)

£95,000
 
(Reference: 11834)
Advert viewed 4143 times
since creation: 08-Feb-2010
Property for Sale

Layout
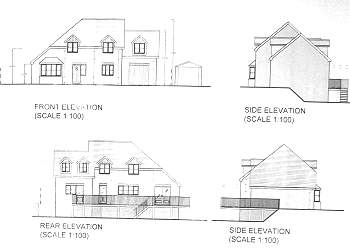
Staffordshire property 4 bedroom(s)
Staffordshire property 0 living/recep. room(s)
Staffordshire property 0 bathroom(s)/WC(s)
Single garage
Land Area/Plot: 3,700 sq ft.
Features

Location:Gnosall Heath
(stafford 5 miles)
Postcode:ST20 0HE
Nearest Shops:500 metres
General Condition:New
Approximate Age:New
Type of Sale:Private Sale
Vendor's Description
Building Plot with Full Planning Permission for a Four Bedroom Detached House with Garage. Gnosall is a sought after village between Newport Shropshire and the county town of Stafford which has 2 accesses to the M6 Motorway and a mainline railway. Rare opportunity to build a dream home at a very fair price in a very nice location. Please email me for any further drawings or information.

Vendor's Contact Details
Tel:  07957618375 (day)  07957618375 (eve)
E-Mail:  Click Here